ГлавнаяГотовый арендный бизнес — Березовское ш, 3

Березовское ш, 3,
1587.00 м2

79 000 000 руб.

49779 руб./м2

Следить за ценой


Площадь: 1587.00 м2

Окупаемость: по запросу



Продается помещение свободного назначения, площадью 1587.00 кв.м, расположенное по адресу: Нефтекамск г, Березовское ш, 3

Отличное предложение для своего или арендного бизнеса!

► первая линия, оживлённое место с очень высоким автомобильным трафиком
► отдельно-стоящее здание

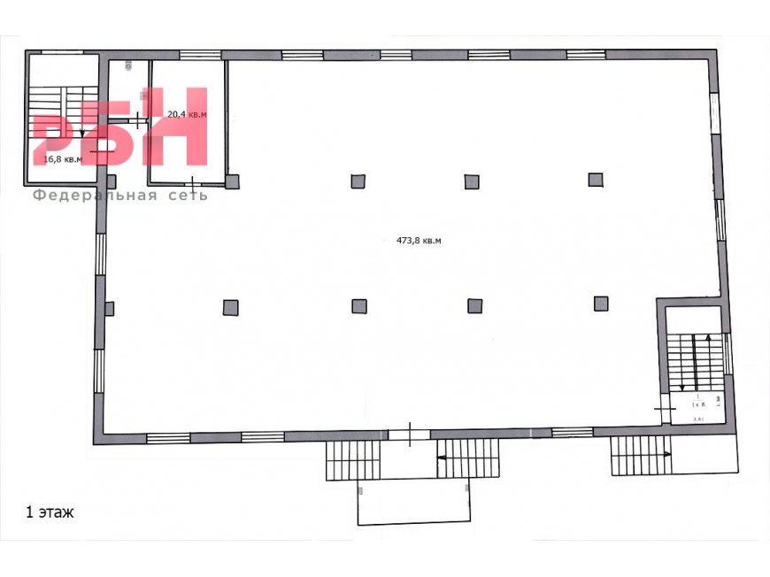
 1 этаж - 530 кв.м 2 этаж - 530 кв.м Цокольный этаж - 530 кв.м Мансардный этаж - 400 кв.м► свободная планировка на каждом этаже
► цокольный этаж с высокими потолками 3,5 м и ремонтом 
► мансардный этаж (без ремонта) можно сделать под офисы или другой пространство
► своя большая парковка
► много места на фасаде для рекламы
► несколько входов
► отличные подъездные пути
► все коммуникации
► действующие арендаторы: Мебельный магазин и WB,
есть площадь сдаваемая в аренду.
​​​​​​​
Отлично подойдет под медклинику, офис, магазин, фитнесцентр!

☎ Звоните! Ответим на все вопросы, организуем просмотр!



Номер объекта: #5/545657/8379

Специалист

Игорь Ахметшин

+7-343-346-95-58

или оставьте ваш номер,
и я перезвоню в течение 5 минут

Согласен с Политикой конфинденциальности и с Политикой оператора в отношении обработки персональных данных

Отправляя заявку вы соглашаетесь на обработку персональных данных

Посмотреть другие объявления в этой категории